Partnerzy serwisu:
Zintegrowany transport

Jakie tramwaje zaproponowano Olsztynowi?

Dalej Wstecz
Data publikacji:
27-08-2024
Ostatnia modyfikacja:
27-08-2024
Tagi geolokalizacji:
Źródło:
TP

Podziel się ze znajomymi:

Olsztyn prowadzi przetarg na zakup sześciu niskopodłogowych tramwajów, które wzbogacą obecną flotę. Zgłosiły się dwie firmy, które są gotowe w przeciągu krótkiego czasu, bo dwóch lat, wyprodukować miastu nowe pojazdy. Co więcej, firmy te nie są producentami, a jedynie zajmowały się profesjonalnym utrzymaniem i naprawą tramwajów. Poznaliśmy niektóre szczegóły techniczne wozów zaproponowanych przez SAATZ oraz CSI Invest.

Trwa przetarg w Olsztynie na zakup i dostawę sześciu niskopodłogowych i wieloczłonowych tramwajów z opcją na osiem kolejnych wozów. Niska podłoga ma zajmować co najmniej 70 procent powierzchni i znajdować się na 37 mm nad główką szyny lub na 48 mm przy zastosowaniu wózków skrętnych. Długość tramwajów została ustalona między 29 a 33 metry. Liczba członów będzie rozwiązaniem przyjętym przez wykonawcę. Szerokość pudła tramwaju określono na 2,5 metra. Zamawiający dopuszcza nieznaczne (maksymalnie 20 mm) zwężenie pudła przy dolnej linii okien po uzasadnieniu przez producenta. Tuż za kabinami motorniczych mają zostać wytyczone miejsca dla osób na wózkach. Pojemność pojazdów wskazano na co najmniej 200 pasażerów przy założeniu napełnienia 5 osób/m2 powierzchni podłogi. Liczba miejsc siedzących musi stanowić minimum 15 proc. wszystkich miejsc. W ustawieniu siedzeń producent ma dążyć do zapewnienia jak najmniejszego ograniczenia szerokości przejścia. Wymagane jest, aby siedzenia ustawione były wzdłużnie i poprzecznie do kierunku jazdy. Dopuszczono ewentualny montaż siedzeń rozkładanych.

Pojazdy mają być napędzane silnikami prądu przemiennego ze sterowaniem elektronicznym oraz wyposażone w urządzenia klimatyzacyjne dla części pasażerskiej i dla kabiny motorniczego. Średnie zużycie energii przez wóz ma być nie większe niż 5 kWh/km. W zależności od liczby członów i długości zaoferowanego przez producenta pojazdu zamawiający wymaga zastosowania drzwi odskokowo-przesuwnych jednoskrzydłowych i dwuskrzydłowych. Jednoskrzydłowe mogą być zastosowane wyłącznie w pobliżu kabiny motorniczego. Zamawiający dopuszcza układy 0/6/0, 1/5/1, 0/5/0 lub 1/4/1. Drzwi mają być rozmieszczone symetrycznie względem osi podłużnej tramwaju. Dopuszcza się zastosowanie większej liczby drzwi.

W zamówieniu nie wskazano wymogu zastosowania w tramwajach wózków skrętnych. Zaznaczono jedynie, że koła o średnicy mieszczącej się w przedziale od 57 do 65 cm mają być wyposażone w smarownice. Tramwaje mają się poruszać z prędkością maksymalną 70 km/h. Zamontowane w pojeździe baterie mają pozwolić na przejazd tramwaju dystansu 200 metrów bez zasilania z sieci trakcyjnej, co pozwoli na zjazd ze skrzyżowania. Dodatkowo wozy dla Olsztyna mają mieć możliwość pokonywać wzniesienia o nachyleniu do 6% i długości jednego kilometra przy maksymalnym obciążeniu. Pojazdy mają być ponadto objęte serwisem gwarancyjnym, a producent ma także dostarczyć specjalistyczny osprzęt i pakiet narzędzi do utrzymania wozów.

Nie producenci a serwisanci

Ostatecznie do przetargu nie przystąpił żaden znany producent taboru tramwajowego, a jedynie firmy, które zajmowały się dotychczas naprawą i utrzymaniem pojazdów szynowych. Umożliwiały to bardzo liberalne warunki udziału w zamówieniu, jakie przyjął Olsztyn. Firma SAATZ zaoferowała dostarczenie sześciu tramwajów za 110,69 mln zł przy budżecie zamawiającego wynoszącym dokładnie 110,7 mln zł. Drugą ofertę złożył CSI Invest, który za zamówienie podstawowe chce 149,5 mln zł. Olsztyn chce sfinansować zamówienie dzięki środkom z KPO i przystąpił do konkursu o pozyskanie dofinansowania.

Turecki tramwaj w nowych wcieleniach

Jedna z tych dwóch firm, a dokładnie CSI Invest, jest już znana Olsztynowi. W trakcie pandemii i lockdownu była partnerem Durmazlara i pozyskiwała w imieniu tureckiego producenta homologację dla Panoramy. Nic zatem dziwnego, że tramwaj zaproponowany właśnie teraz przez CSI Invest nazywa się CSI Panorama. Wśród parametrów technicznych firma wskazała, że jej pojazd będzie miał zmniejszony nacisk na oś do 100 kN. Udział niskiej podłogi zagwarantowano na poziomie 95 proc. Szerokość przejścia w przedziale pasażerskim wskazano na 800 mm, zaś w przejściu nad wózkami wskazano na 640 mm.

W tramwaju od CSI Invest ma się znaleźć miejsce dla 200 pasażerów, w tym dla 36 na miejscach siedzących. Oferent wskazał także, że w pojeździe znajdą się 4 miejsca rozkładane. Poziom emitowanego hałasu przez tramwaj ma wynosić 74,99 dB (zamawiający punktuje ten parametr poniżej 75 dB). Olsztyn ponadto może liczyć na wydłużenie rękojmi za wady o dodatkowe 24 miesiące.

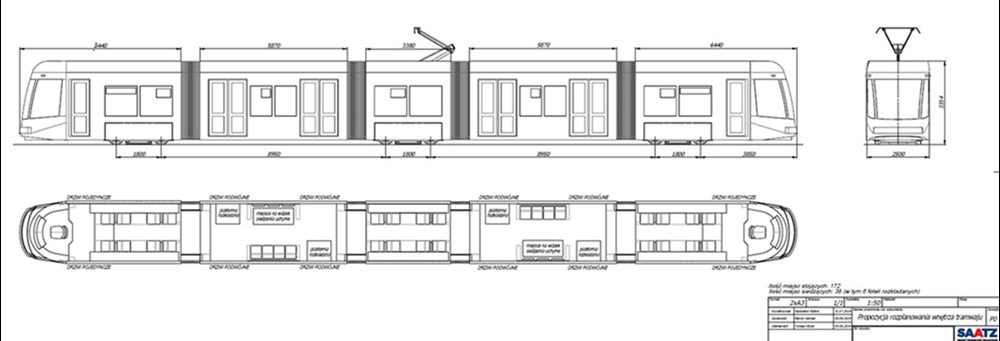
To jednak oferta firmy Saatz jest korzystniejsza cenowo dla Olsztyna, gdyż mieści się w zakładanym budżecie. Firma z Grudziądza deklaruje tramwaj o mniejszym nacisku na oś – 94,9 kN. Udział niskiej podłogi zadeklarowano na poziomie 71 proc. Szerokość przejścia w przedziale pasażerskim ma wynosić 800 mm, zaś w przejściu nad wózkami 640 mm. W pojeździe ma się znaleźć 36 miejsc siedzących oraz 6 rozkładanych. Pojemność tramwaju określono na 210 miejsc. Oferent także jest skłonny wydłużyć rękojmię na tramwaje o dwa lata. Firma dołączyła schemat zaproponowanego modelu tramwaju, który nazwała ST1. Układ wnętrza w dużym stopniu przypomina ten znany z Panoramy.

O wyborze dostawcy tylko w połowie zadecyduje cena. W pozostałej części decydują kryteria jakościowe jak dodatkowa rękojmia za wady (15 proc.) oraz parametry techniczne (35 proc.). Olsztyn w toku pytań przetargowych przesunął termin realizacji zamówienia i tramwaje mają być gotowe do odbioru najpóźniej do 14 sierpnia 2026 roku. Umowa z wykonawcą będzie obowiązywała przez 48 miesięcy, zaś zamawiający będzie miał krótszy czas na decyzję co do skorzystania z prawa opcji, bo 24 miesiące od podpisania kontraktu.



Schemat tramwaju zaoferowanego przez SAATZ
Tagi geolokalizacji:

Podziel się z innymi:

Zobacz również:

Olsztyn. Rozwój tramwaju w próżni

Zintegrowany transport

Olsztyn. Rozwój tramwaju w próżni

Jakub Rösler 19 maja 2025

Olsztyn. Najpierw analizy, a później decyzja o tramwajach

Zintegrowany transport

Olsztyn. Najpierw analizy, a później decyzja o tramwajach

Przemysław Farsewicz 08 października 2025

Olsztyn. Pierwsze zapowiedzi rozbudowy tramwajów przez opozycję

Zintegrowany transport

Olsztyn. Pierwsze zapowiedzi rozbudowy tramwajów przez opozycję

Zintegrowany transport

Olsztyn rezygnuje z ok. 100 mln zł unijnych środków na transport

Zintegrowany transport

Olsztyn. Rozwój tramwaju w próżni

Zintegrowany transport

Olsztyn. Rozwój tramwaju w próżni

Jakub Rösler 20 maja 2025

Zobacz również:

Olsztyn. Rozwój tramwaju w próżni

Zintegrowany transport

Olsztyn. Rozwój tramwaju w próżni

Jakub Rösler 19 maja 2025

Olsztyn. Najpierw analizy, a później decyzja o tramwajach

Zintegrowany transport

Olsztyn. Najpierw analizy, a później decyzja o tramwajach

Przemysław Farsewicz 08 października 2025

Olsztyn. Pierwsze zapowiedzi rozbudowy tramwajów przez opozycję

Zintegrowany transport

Olsztyn. Pierwsze zapowiedzi rozbudowy tramwajów przez opozycję

Zintegrowany transport

Olsztyn rezygnuje z ok. 100 mln zł unijnych środków na transport

Zintegrowany transport

Olsztyn. Rozwój tramwaju w próżni

Zintegrowany transport

Olsztyn. Rozwój tramwaju w próżni

Jakub Rösler 20 maja 2025

Kongresy
SZKOLENIE ON-LINE
Śledź nasze wiadomości:
Zapisz się do newslettera:
Podanie adresu e-mail oraz wciśnięcie ‘OK’ jest równoznaczne z wyrażeniem zgody na:
  • przesyłanie przez Zespół Doradców Gospodarczych TOR sp. z o. o. z siedzibą w Warszawie, adres: Sielecka 35, 00-738 Warszawa na podany adres e-mail newsletterów zawierających informacje branżowe, marketingowe oraz handlowe.
  • przesyłanie przez Zespół Doradców Gospodarczych TOR sp. z o. o. z siedzibą w Warszawie, adres: Sielecka 35, 00-738 Warszawa (dalej: TOR), na podany adres e-mail informacji handlowych pochodzących od innych niż TOR podmiotów.
Podanie adresu email oraz wyrażenie zgody jest całkowicie dobrowolne. Podającemu przysługuje prawo do wglądu w swoje dane osobowe przetwarzane przez Zespół Doradców Gospodarczych TOR sp. z o. o. z siedzibą w Warszawie, adres: Sielecka 35, 00-738 Warszawa oraz ich poprawiania.
Współpraca:
Rynek Lotniczy
Rynek Infrastruktury
TOR Konferencje
ZDG TOR
ZDG TOR
© ZDG TOR Sp. z o.o. | Powered by BM5
Zamknij